330 m² - Iroda
Leírás
Körpanorámás, önálló irodatömb bámulatos kilátással. „A kategóriás” élmény „B kategóriás” áron.
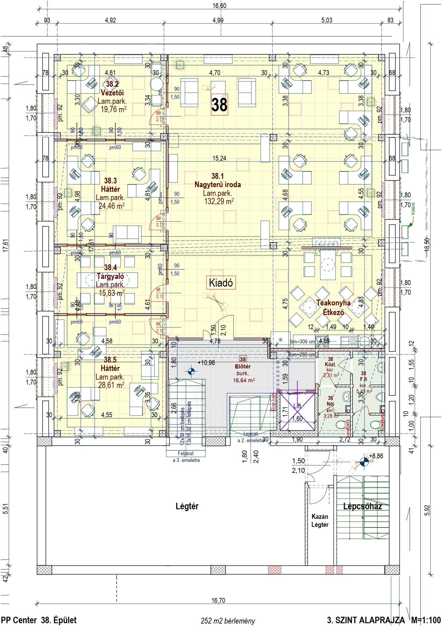
Kiadó irodai szintek az üzleti központ III. épület közepén a 38. toronyban. Szintenként 330 m2 szerkezetkész terek lépcsőházzal és lifttel. Összesen négy emelet. A folyosó és a lépcsőház helyreállítása is elkészült. A bérlemények még egyedi igények szerint alakíthatók, válaszfalazhatók.
A látványtervek egy lehetséges részben nagyterű irodás kialakítást mutatnak leválasztott vezetői irodák, tárgyaló és 3-4 fős háttér helyiségekkel.
2-3 emelet közös félszintről nyílik 583 m2 bérlemény
4. emelet 329 m2 bérlemény
5. emelet 302 m2 bérlemény és 75 m2 erkélyek és terasz
A bérlemények megközelíthetők a Szentendrei útról a III. kapu felől a felújított északi úton a 43. lépcsőházból valamint az udvarról egy gazdasági folyosón keresztül, ahonnan a lift indul.
Az udvari lépcsőház és homlokzat helyreállítása elkészült a képek alapján. Az udvaron a parkolás biztosított.
Érezte már, hogy egy jó lokáció megkönnyíti az életét?
Itt minden adott az üzleti tevékenységéhez, sőt még a szabadidő eltöltéséhez is. 500 férőhelyes parkoló, éttermek, kávézók, bio- és gluténmentes pékségek, nyomdák, papír-, írószer, villamosság, ruházat, könyvelőiroda, kommunikációs és média ügynökségek, dizájn és egyéb boltok, képzőművészeti galéria, fotóstúdió és sport. Tömegközlekedve és személygépkocsival is jól megközelíthető. Elképesztő lehetőségek üzleti szinergia kialakítására jól menő cégek között, impozáns környezetben.
Forduljon hozzánk bizalommal! Kollégáink igény szerint állnak rendelkezésére, hogy ideális bérleményt találjon nálunk reális áron.
Telefon: +36309962962
| Azonosító: | PP38-330 m2 |
| Terület (m2): | 330 |
| Funkció: | Iroda |
| Állapot: | Igény szerint alakítható |
| Fekvés: | K |
| Akciós: | |
| Kiadva: | |
| Terület: | |
| Golipark ajánlatban szerepel: | Igen |










